当社賃貸空室情報
ネオ北千束 501号室
- 賃料
-
130,000円
- 管理費
-
7,000円
- 敷金
-
賃料の1ヶ月分
- 保証金
-
−
- 礼金
-
賃料の0ヶ月分
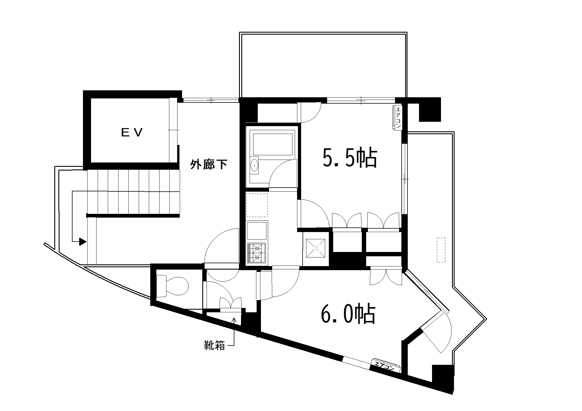
- 間取り
-
2K
- 専有面積
-
31.54m²(9.54坪)
外観・内観
物件概要
- 所在地
-
大田区北千束2丁目16-2
- アクセス
-
大井町線「北千束」駅 徒歩1分
- 構造/所在階
-
RC5階建/5階
- 築年月
-
1998年(平成10年)10月
- 総戸数
-
26戸
- 方角
-
東
- 火災保険
-
要加入22,000円~(2年毎更新)
- 保証会社
-
原則加入 保証会社エポスカード
利用料金:初回月額賃料等合計の30%、
毎月月額賃料等合計の1%
- 契約形態
-
普通賃貸借契約
- 契約期間
-
2年間
- 用途
-
住居
- 現況
-
空室
- 引渡し
-
2025年11月中旬予定
- 更新料
-
更新後賃料の1ヶ月分
- 駐輪場
-
有(無料)
- バルコニー
-
有
- 取引態様
-
貸主
- 公開日
-
2025年10月15日
- 次回更新日
-
2025年11月12日
- 備考
-
【防犯カメラ】【オートロック】【宅配BOX】【バス・トイレ別】【温水便座】【追焚機能】【浴室乾燥機】【室内洗濯機】【2口コンロ】【24時間ゴミ出し可】【都市ガス】【フローリング】【駐輪場】【EV】
退去時にルームクリーニング費用 60,500円(税込)を負担していただきます。